Réf. : 0125-03
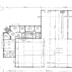
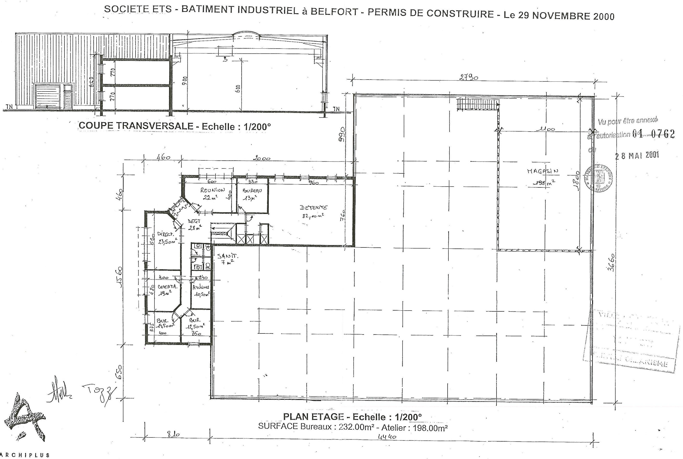
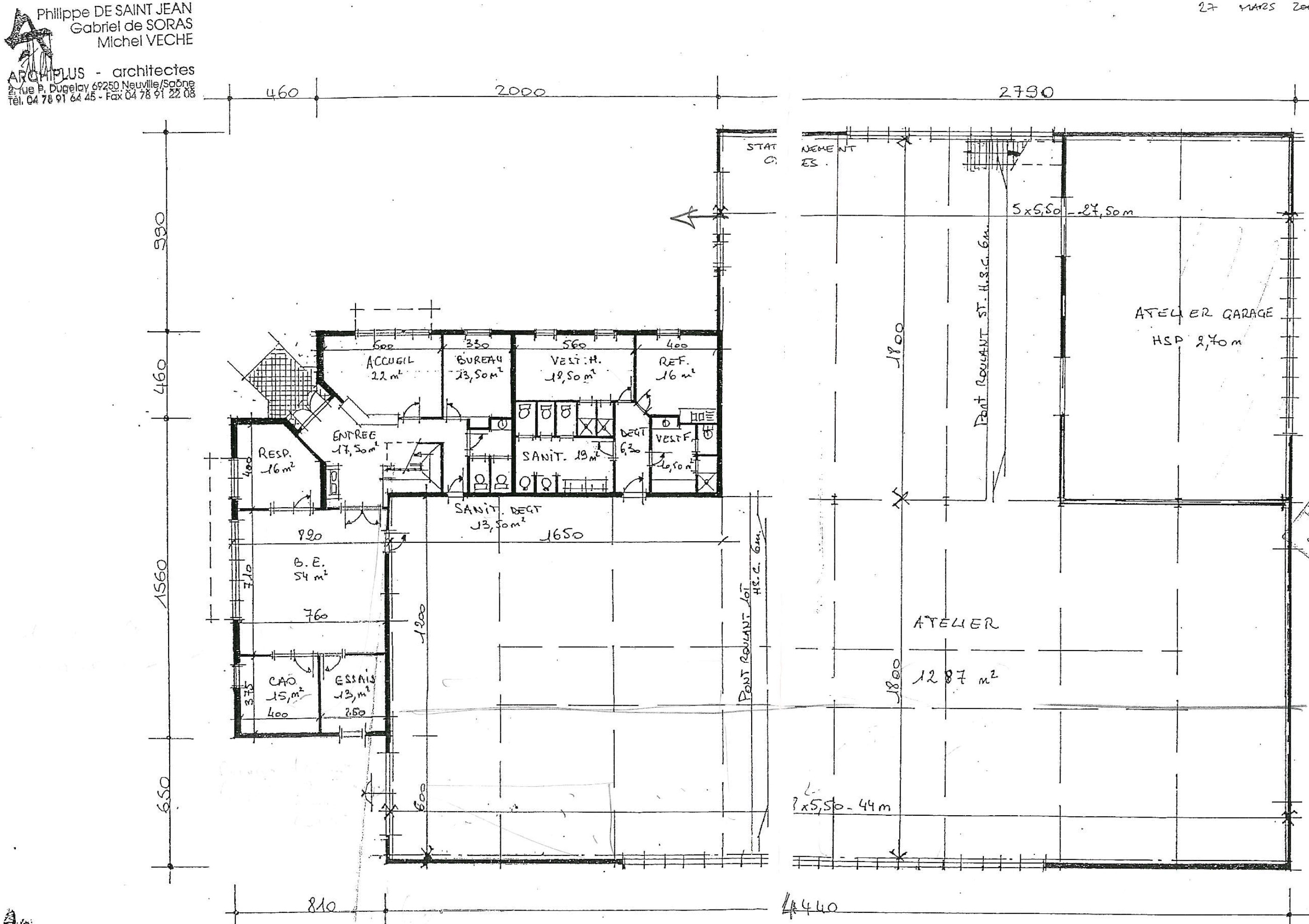
Bâtiment d’activités de 2 000 m² avec bureaux – Belfort
Local d'activités
Location
Bâtiment d'activités de 2 000 m2 avec bureaux, disponibles à partir du 1er avril 2025.
Répartition des surfaces :
- Rez de chaussée : bureaux de 165 m2 + 70 m2 de locaux sociaux (réfectoire, toilettes, vestiaires) + 1 300 m2 de stockage (hauteur utile de 8 mètres),
- 1er étage : 220 m2 de bureaux + 200 m2 de stockage + 20 m2 sanitaires.
Parkings :
70 emplacements de parking + 9 en extérieur.
Caractéristiques :
Terrain de 4 958 m2
Chauffage gaz pour la partie stockage
Chauffage PAC et électrique pour les bureaux
Conditions tarifaires :
Loyer :15 246 €HT/mois
Taxe foncière à rembourser : 23,3 K€/an.
